菜单
张总:13313297710吴总:15176712909
网站首页
关于我们
经典案例
幕墙专区
新闻动态
团队风采
联系我们
人力资源
Copyright © 唐山幕尚建筑装饰有限公司
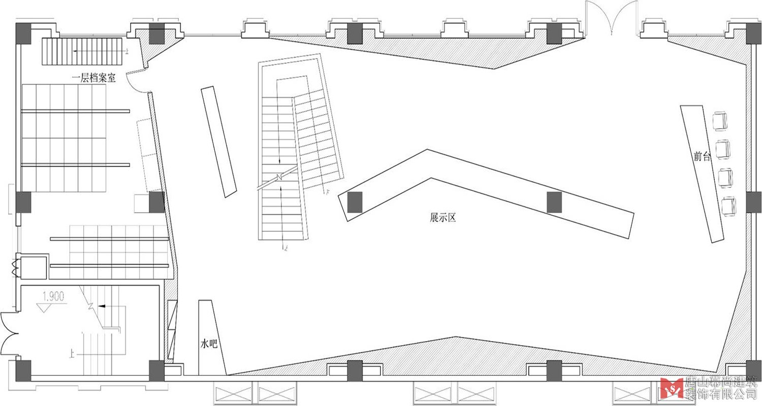
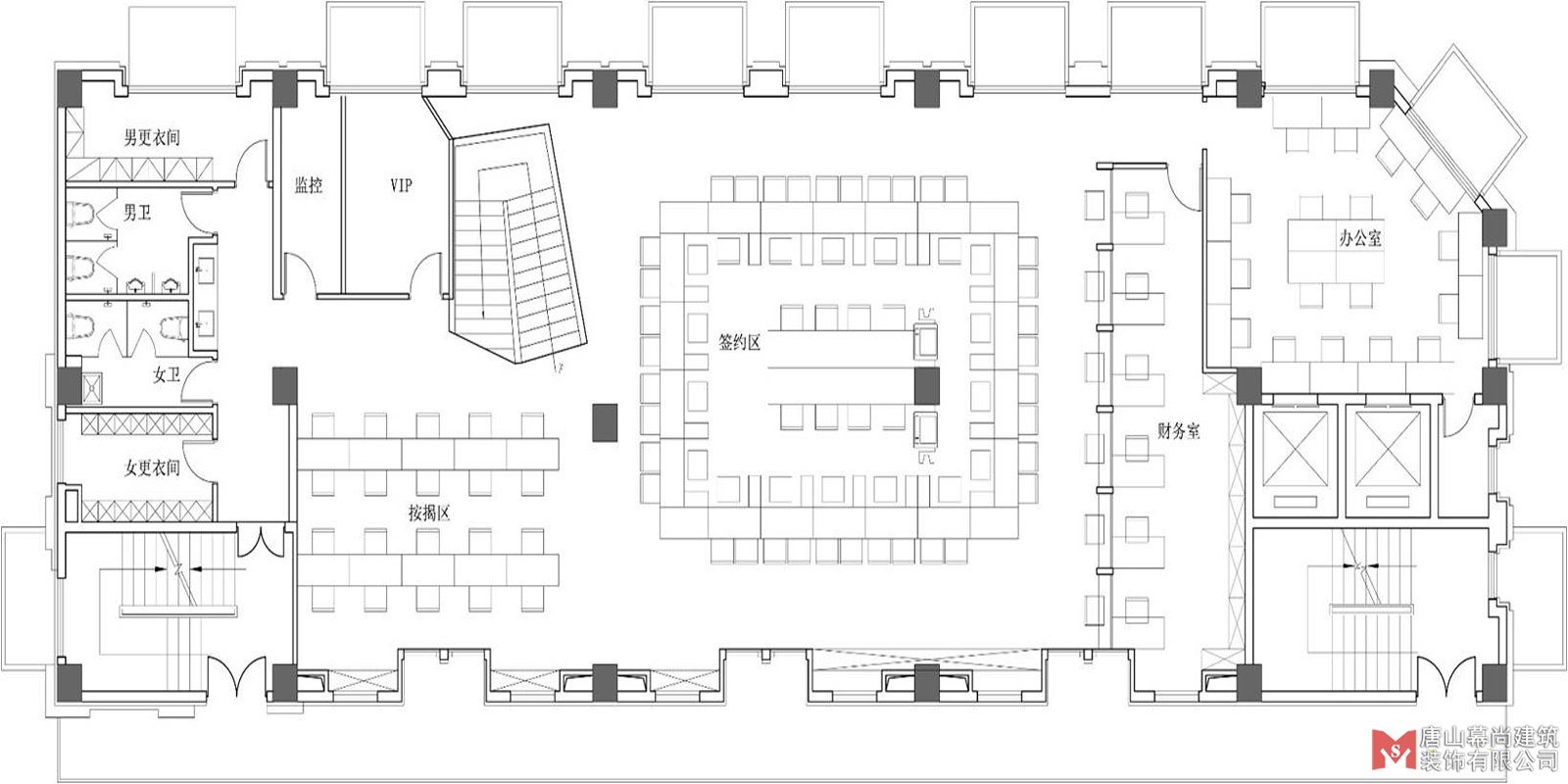
办公建筑
万科蓝山V盟签约中心
项目名称:万科蓝山V盟签约中心
唐山幕尚建筑装饰有限公司是一家主营唐山建筑装饰设计、软装设计、建筑幕墙设计、景观亮化、影音多媒体设计施工为一体的综合性公司。拥有国内一线的专业设计团队。设计师具有多年从事甲级设计院工作经验。公司依托集团设计院资源优势。涉足公共建筑酒店、会所、办公写字楼、商业、展览、金融、幼儿园、医疗机构、精装样板房、唐山大宅别墅设计施工。
我们始终秉承设计源于生活,坚持原创理念,让生活的空间变得诗意宜居。
上一篇
万科悦峯办公楼
下一篇
万科侯台泊寓